В наличии
Цена: по запросу
В наличии
Цена: по запросу
В наличии
Цена: по запросу
В наличии
Цена: по запросу
В наличии
Цена: по запросу
В наличии
Цена: по запросу
В наличии
Цена: по запросу
В наличии
Цена: по запросу
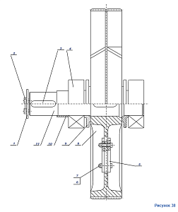
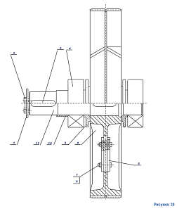
Тихоходный вал является выходным валом редуктора подъемной лебедки ЭКГ-5А. Он вращается с самой низкой скоростью, но испытывает максимальные крутящие моменты. От его прочности зависит работоспособность всего подъемного механизма.
АО ГК "АВИТЕКС" специализируется на производстве тяжело нагруженных валов. Тихоходные валы изготавливаются из высокопрочных стальных поковок. Комплексная технология позволяет детали сопротивляться нагрузкам без деформаций.
Поломка тихоходного вала является серьезной аварией. У нас можно купить или заказать тихоходный вал для ЭКГ-5. Для уточнения цены свяжитесь с отделом продаж.
